
Structural Design & Steel Detailing – 116.77 Tons Steel Structure
Project Overview
The SMP Office is a multi-story steel structure developed under a fully integrated structural design and steel detailing scope as part of our broader structural engineering and BIM services.
With a total structural weight of approximately 116.77 metric tons, this project required precision engineering, connection detailing accuracy, and fabrication-oriented modeling to ensure constructability and erection efficiency.
This project is part of our Project Case Studies, where we showcase real engineering solutions developed by our team.
General Information
- Structural System: Eccentrically Braced Steel Frame System (EBF)
- Total Structural Weight: ~116.77 tons
- Footprint Dimensions: 25.357 m × 21.200 m
- Total Height: 17.425 m
- Scope: Structural Design + Steel Detailing
3D Structural Modeling

Global 3D model
The project was developed through a full 3D structural modeling workflow, aligned with our BIM coordination workflow to ensure model integrity and technical precision.
This approach allowed:
- Accurate member coordination
- Bracing system verification
- Load path validation
- Clash-free connection detailing
- Erection sequencing evaluation
Early-stage BIM clash detection was implemented to reduce field conflicts and ensure fabrication-level accuracy before issuing shop drawings.
The modeling phase ensured consistency between analytical design and fabrication documentation.
Structural Configuration
The building incorporates:
- Multi-level steel framing system
- Diagonal bracing for lateral stability
- Composite floor systems
- Moment and shear connections
- Reinforced concrete pedestals with base plate anchorage
The lateral system combines braced bays and rigid frame behavior to ensure adequate resistance against wind and service loads.
Steel Connection Detailing

Connection detailing included:
- Bolted beam-to-column joints
- Gusset plates for bracing systems
- Base plate anchorage design
- Anchor rod layout coordination
- Stiffener plate integration
Each joint was modeled at fabrication level to ensure:
- Bolt accessibility
- Proper plate thickness specification
- Weld definition
- Shop drawing clarity
Foundation Interface & Pedestal Detailing

Pedestal and base plate design involved:
- Anchor bolt layout optimization
- Plate thickness verification
- Concrete pedestal reinforcement detailing
- Section A-A and B-B validation
- Field tolerance considerations
This ensured proper transfer of axial, shear, and moment forces to the foundation system.
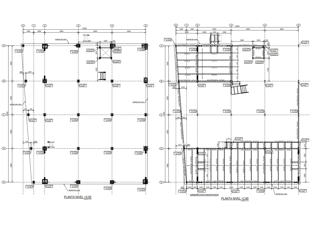
Structural Plans Development

Structural plans were developed for each level, including:
- Grid coordination
- Column layout definition
- Beam identification
- Bracing positioning
- Elevation references
The documentation package included fabrication-ready drawings aligned with detailing standards.
Engineering Approach
This project followed a fabrication-driven workflow:
Structural analysis and member sizing
3D BIM modeling
Connection engineering
Shop drawing production
Quality control verification
Integrating design and detailing under one technical framework minimized interpretation gaps and reduced fabrication risks.
Technical Challenges Addressed
- Multi-story steel bracing coordination
- Base plate-to-pedestal load transfer accuracy
- Member alignment across vertical levels
- Constructability validation
- Structural weight optimization
Project Impact
- 116.77 tons of precisely coordinated steel
- Fully detailed bracing system
- Fabrication-ready documentation
- Reduced field rework risk
- High structural reliability
Why Integrated Design + Detailing Matters
When structural design and detailing are developed separately, inconsistencies can arise between calculation intent and fabrication reality.
In the SMP Office project, integrating both scopes ensured:
- Faster RFIs resolution
- Reduced clashes
- Clear erection guidance
- Improved cost control
Looking for Structural Design & Steel Detailing Services?
Grupo ADIPSA provides:
- Structural engineering
- Steel detailing
- Rebar detailing
- BIM modeling & coordination
- Shop drawing production
Contact our team to discuss your next steel structure project.





